площадью 1780,00 м2, по цене 220000000 по адресу Батайск - Урицкого улица,7

Цена 220 000 000 р.
Адрес Батайск, Урицкого улица,7
Площадь помещения 1780 м2
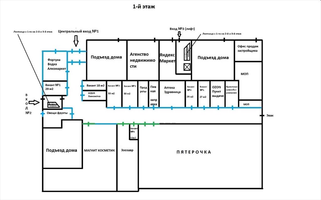
Продается помещение свободного назначения, 1 этаж ТЦ "Астрасити", г. Батайск Основная информация: Общая площадь: 1 780,5 м2 (весь первый этаж торгового комплекса) Адрес: Ростовская область, г. Батайск, ул. Урицкого, 7 Цена: 220 000 000 рублей Расположение: Центральная часть города, фасад выходит на перекресток ул. Энгельса и ул. Урицкого. О здании: Трехэтажный торговый комплекс, входящий в состав МКД (236 квартир). Продается полностью весь первый этаж. Высокий автомобильный и пешеходный трафик. Отличный рекламный обзор и хорошо просматриваемый фасад. Имеется возможность размещения рекламной вывески. Несколько входов в торговый комплекс. Размещена зона разгрузки. Коммуникации и системы: Система центрального кондиционирования. Пожарная сигнализация. Инвестиционная привлекательность и арендаторы: Помещение полностью сдается в аренду, что обеспечивает стабильный денежный поток. Возможна продажа с передачей права аренды действующим арендаторам. Якорные арендаторы: Пятерочка (магазин у дома) Магнит Косметик (парфюмерия и косметика) Фортуна (алкогольная продукция) Прочие арендаторы: Аптека низких цен Химчистка "Аква" Зоомагазин "Зоозавр" "Пенная заправка" (разливное пиво) Пункт выдачи заказов Ozon Прачечная самообслуживания Торговые аппараты (вендинг)
Объявление № 23439788
Дата подачи:
20 октября 2025 г. 1:15
Дата обновления:
20 октября 2025 г. 0:00
Просмотров 14 Хотите продать быстрее?

Продавец
Оксана
Показать номер телефона
Пожаловаться
Комментарии:
Добавить